Sun Grand City Feria Hạ Long là dự án biệt thự cao cấp của chủ đầu tư tập đoàn Sun Group nằm ngay cạnh khu nghỉ dưỡng 5 sao Sun Premier Village Ha Long Bay, phường Bãi Cháy, thành phố Hạ Long, tỉnh Quảng Ninh. Dự án Sun Grand City Feria có quy mô bao gồm 479 căn biệt thự với đa dạng các loại hình từ đơn lập, song lập đến tứ lập; diện tích đất từ 130m2 – 600m2. Với nguồn cảm hứng Địa Trung Hải độc đáo, các căn biệt thự tại Sun Grand City Feria là sự quyện hòa tinh tế giữa lối kiến trúc mái đỏ đặc trưng của Tây Ban Nha cùng viền xanh tinh tế của Santorini, mang đến vẻ đẹp phóng khoáng, lãng mạn và đầy cá tính.

Phối cảnh dự án Sun Grand City Feria Hạ Long
Mang thương hiệu Sun Grand City – dòng bất động sản để ở cao cấp luôn nằm tại vị trí đẹp và được đầu tư, phát triển bởi Tập đoàn Sun Group, Sun Grand City Feria Bãi Cháy là dự án được xây dựng theo mô hình khu đô thị phong cách nghỉ dưỡng của Sun Group tại Hạ Long.
TỔNG QUAN DỰ ÁN SUN GRAND CITY FERIA HẠ LONG
- Tên dự án : Sun Grand City Feria
- Chủ đầu tư: Tập đoàn Sun Group
- Vị trí: Đường Hạ Long, P. Bãi Cháy, TP. Hạ Long, tỉnh Quảng Ninh
- Tổng diện tích dự án: 40,93ha
- Loại hình sản phẩm: Biệt thự
- Quy mô dự án : 479 căn biệt thự chia thành 2 phân khu Calvia và Malloca
- BT tứ lập: DT đất 130- 180m2
- BT song lập: DT đất 180-280m2
- BT đơn lập: DT đất 250- 600m2
- Thiết kế: theo kiến trúc Địa Trung Hải
- Xây dựng: 3 tầng, 1 tum
- Hình thức sở hữu: Sở hữu lâu dài.

VỊ TRÍ DỰ ÁN SUN GRAND CITY FERIA HẠ LONG
Dự án Sun Grand City Feria Hạ Long tọa lạc tại phường Bãi Cháy, Thành phố Hạ Long, tỉnh Quảng Ninh. Dự án Sun Grand City Feria có vị trí tọa lạc ở trung tâm khu vực Bãi Cháy, nằm sát cạnh khu shophouse Sun Plaza Grand World và khu nghỉ dưỡng 5 sao Premier Village Ha Long Bay Resort, Sun Grand City Feria Bãi Cháy thừa hưởng vị trí lý tưởng “cận biển, kế hồ, tiếp giáp phố”.

Sun Grand City Feria sở hữu vị trí “tâm ngọc” của TP Hạ Long, nằm giữa trục đường trung tâm khu du lịch Bãi Cháy và Vịnh Hạ Long. Dự án hứa hẹn sẽ trở thành điểm đến của khách du lịch trong và ngoài nước. Đặc biệt là khi cơ sở hạ tầng hoàn thiện đồng bộ (Sân bay Quốc tê Vân Đồn, Cao tốc Hà Nội-Hải Phòng-Hạ Long-Vân Đồn-Móng Cái).


Giao thông thuận tiện đến dự án
- Tuyến đường cao tốc Hạ Long – Hải Phòng – Hà Nội (chỉ với ~2h đồng hồ lái xe).
- Cảng hàng không quốc tế Vân Đồn (sân bay quốc tế đầu tiên tại Hạ Long).
- Cảng tàu quốc tế.
- Tuyến đường cao tốc Vân Đồn – Móng Cái.
- Đường bao biển Hạ Long – Cẩm Phả.
Trong tương lai, với hệ thống hầm và 3 cây cầu Cửa Lục 1,2,3 đang được đầu tư xây dựng, cư dân Sun Grand City Feria sẽ dễ dàng kết nối hơn nữa tới khu vực Hòn Gai (phía Tây) để tiếp cận những tiện ích, dịch vụ thiết yếu khác của thành phố. Điều này cũng phù hợp với Quy hoạch chung thành phố đến năm 2040, tầm nhìn 2050 khi Hạ Long xác định cấu trúc phát triển đô thị theo mô hình đa cực, trong đó lấy Vịnh Cửa Lục làm trung tâm kết nối, đưa Bãi Cháy trở thành trung tâm đô thị mới sầm uất của vùng đất di sản.
TIỆN ÍCH DỰ ÁN SUN GRAND CITY FERIA HẠ LONG
Biệt thự Sun Grand City Feria sẽ là dự án đô thị ở nghỉ dưỡng vô cùng tiềm năng cho các nhà đầu tư vì tại đây sở hữu rất nhiều tiện ích nội khu mà chủ đầu tư đẹm lại đồng thời sở hữu nhiều tiện ích ngoại khu xung quanh tại khu du lịch tuyệt vời nhất của Việt Nam .

Hơn 38.000m2 tiện ích chỉ dành riêng cho cư dân của Sun Grand City Feria Bãi Cháy Hạ Long, từ các tiện ích nổi khu nổi bật, đến các tiện ích ngoại khu như quy hoạch bãi biển hay tháp Domino 99 tầng đã tạo nên dấu ấn riêng của Sun Group mà không dự án nào có được.
- Công viên biểu tượng: 1717m2
- Sân bóng rổ: 750m2
- Sân chơi trẻ em: 714m2
- Đài phun nước: 3450m2
- Sân cầu lông: 3328m2
- Hồ cảnh quan: 11.848m2 & 4.678m2
- 2 hồ cảnh quan với tổng diện tích ~ 15.000m2
- Hệ thống an ninh 4.0 cao cấp 24/7.


Khu thể thao ngoài trời

Khu vui chơi trẻ em ngoài trời

Bên cạnh tiện ích nội khu, cư dân của Sun Grand City Feria hưởng đặc quyền tận hưởng chuỗi trải nghiệm du lịch, giải trí, mua sắm trong bán kính chưa đầy 1 km quanh khu vực với bãi tắm Bãi Cháy sạch đẹp vừa được chỉnh trang, đường bao biển Kỳ quan – điểm hẹn mới của người dân phố biển, tổ hợp Sun World Halong Complex, Cảng tàu khách quốc tế Hạ Long hay phố mua sắm Shophouse Europe – Sun Plaza Grand World…
MẶT BẰNG DỰ ÁN SUN GRAND CITY FERIA HẠ LONG
Sun Grand City Feria Ha Long được thiết kế theo hình nan quạt lấy ý tưởng từ những cánh buồm no gió trên Vịnh Hạ Long. Mỗi biệt thự có thiết kế chiều cao tầng lên tới 3,9m, không chỉ là sự hài hòa với lối sống của người Hạ Long, mà còn giúp đón trọn được vị biển, ánh nắng và gió trời. Với đa dạng các loại hình từ đơn lập, song lập; diện tích đất từ 170 – 650m2, tương đương các suất đầu tư hợp lý, biệt thự Sun Grand City Feria hứa hẹn sẽ tiếp tục “đốt cháy” thị trường BĐS Hạ Long mùa hè này.
Sun Grand City Feria với thiết kế mái ngói đỏ đặc trưng đậm dấu ấn của vùng đất Địa Trung Hải nổi tiếng – Tây Ban Nha. Ở đó, với 2 phân khu được thiết kế dựa trên cảm hứng từ những vùng đất đã đi vào huyền thoại, góp phần khiến xu hướng “kiến trúc Địa Trung Hải” trở thành mực thước.
Chủ đầu tư dự án Sun Grand City Feria ra mắt phân khu CALVIA với vị trí cửa ngõ dự án, sở hữu tầm nhìn panorama hướng biển, ngắm trọn đảo Rều lung linh, cùng hệ thống tiện ích đa dạng, Calvia hứa hẹn đem đến sản phẩm xứng tầm để giới thượng lưu Quảng Ninh sở hữu, sinh sống và khẳng định vị thế bản thân, đồng thời là cơ hội sinh lời hấp dẫn cho các nhà đầu tư phía Bắc. Phân khu Calvia đã bán hết trong thời gian kể từ khi ra mắt.
Phân khu MALLORCA – điểm đến nổi danh tuyệt mỹ tại Địa Trung Hải, mang đến không gian ấn tượng cho những ai yêu thích cuộc sống nghỉ dưỡng nhưng không kém phần sôi động, phóng khoáng.

Mặt bằng dự án Sun Grand City Feria Hạ Long
Kết cấu biệt thự Sun Grand City Feria
Biệt thự Sun Grand City Feria được xây dựng 3 tầng 1 tum, được thiết kế theo phong cách kiến trúc Địa Trung Hải hiện đại, tươi mới nhưng vẫn giữ được sự sang trọng, đắt giá của dòng bất động sản cao cấp ven biển.
Biệt thự Sun Grand City Feria Hạ Long là sự kết hợp hoàn hảo giữa thiết kế tối giản mà sang trọng, giữa các gam màu tối giản mà hiện đại; không phải thỏa hiệp với bất cứ giá trị nào mà vẫn quý phải, tinh tế trong từng đường nét, hướng phong cách sống của chủ sở hữu lên tầm cao khác biệt tao nhã và thanh lịch.

Kết cấu điển hình căn biệt thự Sun Feria Hạ Long.
- Tầng 1: 3,9m.
- Tầng 2 và 3: 3,3m.
- Tầng Tum: 3m:
- Tầng Mái: 2,1m.
- Dầm: 40cm x 25cm.
- Cột: 22cm x 40cm.
Biệt thự Đơn lập
- Số lượng : 109 căn
- Diện tích đất: 250-600m2
- Diện tích sàn : 143-206m2
- Diện tích xây dựng : 419 – 652m2.


Phối cảnh biệt thự đơn lập Sun Grand City Feria
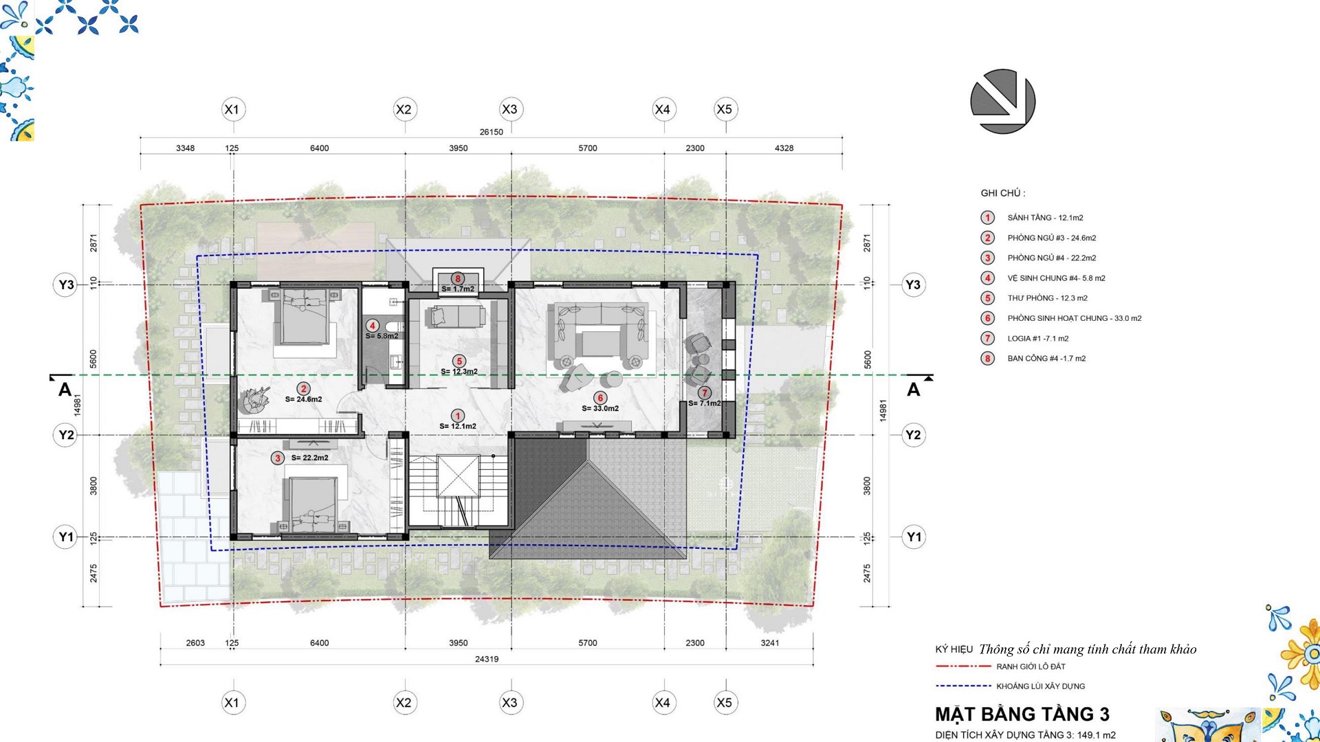
Mặt bằng chi tiết biệt thự đơn lập Sun Grand City Feria




Biệt thự song lập
- Số lượng : 266 căn
- Diện tích đất : 180 – 280m2.
- Diện tích sàn : 97- 118m2.
- Diện tích xây dựng : 300-382m2.

Phối cảnh biệt thự song lập A – Phân khu Calvia

Phối cảnh biệt thự song lập C – Phân khu Calvia
Mặt bằng chi tiết biệt thự song lập Sun Grand City Feria Hạ Long




Biệt thự tứ lập
- Số lượng : 104 căn.
- Diện tích đất : 130 – 180m2.
- Diện tích sàn : 85,1m2.
- Diện tích xây dựng : 272m2.


Phối cảnh biệt thự tứ lập Sun Grand City Feria
Mặt bằng chi tiết biệt thự tứ lập Sun Grand City Feria Hạ Long




GIÁ BÁN VÀ TIẾN ĐỘ THANH TOÁN
Giá bán biệt thự Sun Grand City Feria : Từ 12 Tỷ/Căn
Để nhận bảng giá chi tiết từng căn biệt thự tại Sun Grand City Feria Hạ Long Quý khách hàng vui lòng liên hệ với phòng kinh doanh hoặc điền thông tin vào biểu mẫu đăng ký.
Tiến độ thanh toán dự án




Thông tin chi tiết dự án Sun Grand City Feria Hạ Long quý khách liên hệ
Hotline : 0916323066
