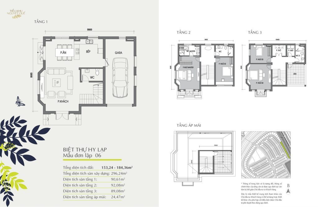
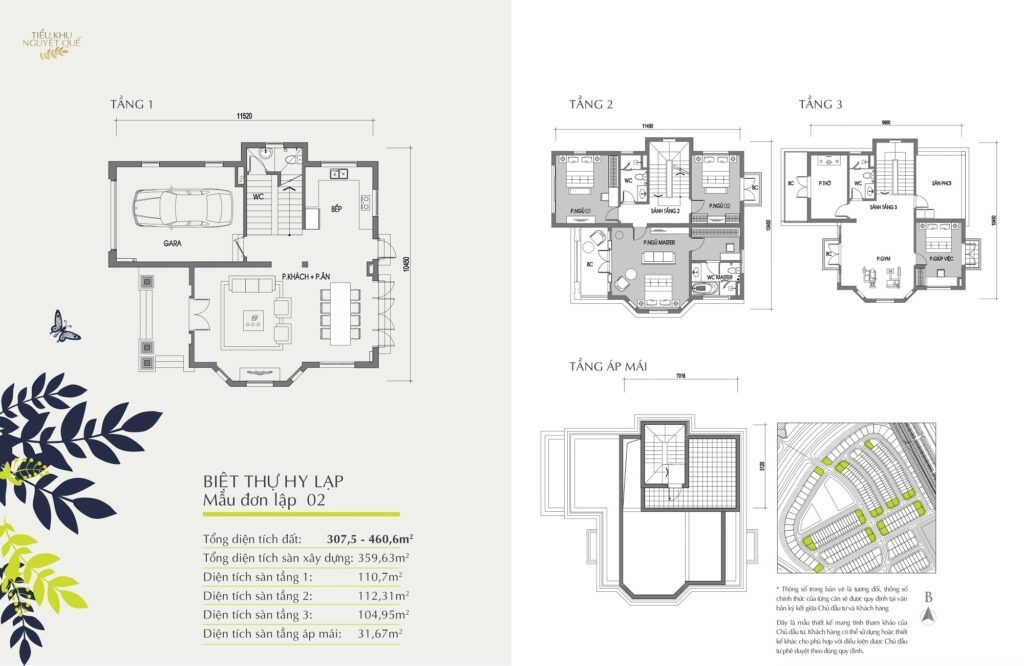
Biệt thự đơn lập Nguyệt Quế (Hay còn gọi là biệt thự đơn lập Hy Lạp) có tất cả khoảng 180 căn được xây dựng trên các lô đất rộng 153 – 495 m2, nằm trải dọc theo kênh sinh thái và nằm tại các lô góc trục đường từ Nguyệt Quế 1 – 20 thuộc tiểu khu Nguyệt Quế Vinhomes Riverside The Harmony. Lấy cảm hứng từ kiến trúc Hy Lạp cổ kính với đến thờ Parthenon nổi tiếng trong các câu chuyện thần thoại, các căn biệt thự đơn lập Nguyệt Quế Vinhomes The Harmony được thiết kế với mái tam giác, mô típ trang trí hình quả trám thể hiện sự hiện đại, sáng tạo, cách điệu nhưng vẫn mang những nét kiến trúc kinh điển vượt thời gian. Biệt thự đơn lập Hy Lạp đang là loại hình biệt thự phổ biến nhất tại khu đô thị Vinhomes Riverside The Harmony, có tất cả 6 mẫu thiết kế & chiếm tới tổng số hơn 50% lượng biệt thự đơn lập tại khu đô thị sinh thái này. Dưới đây là hình ảnh phối cảnh & thiết kế chi tiết các mẫu biệt thự đơn lập Hy Lạp, bạn hãy tải ảnh về để xem rõ nét hơn:
Biệt thự đơn lập Phong Lan (Hay còn gọi là biệt thự đơn lập Pháp) có tất cả 38 căn được xây dựng trên các lô đất rộng 329 – 481 m2, nằm dọc theo bờ kênh và các lô góc tại các trục đường Phong Lan 1, Phong Lan 2, Phong Lan 3, Phong Lan 4 & Phong Lan 5 thuộc tiểu khu Phong Lan Vinhomes Riverside The Harmony. Được xây dựng theo kiến trúc cổ điển của miền Bắc đất nước Pháp xinh đẹp, lãng mạn được thể hiện qua những ô cửa sổ theo hình vòm trang nhã, thanh mảnh cùng mái nhà Mansard đặc trưng, biệt thự đơn lập Phong Lan Vinhomes The Harmony sẽ khẳng định tầm cao mới và gu thẩm mỹ tinh tế của những chủ nhân tương lai thời thượng. Dưới đây là hình ảnh phối cảnh & thiết kế chi tiết các mẫu biệt thự đơn lập Pháp, bạn hãy tải ảnh về để xem rõ nét hơn:
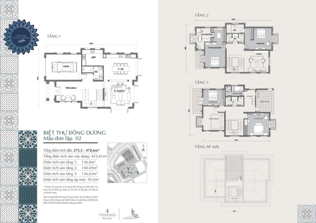
Biệt thự đơn lập Hướng Dương (Hay còn gọi là biệt thự đơn lập Đông Dương) có tất cả 30 căn được xây dựng trên các lô đất rộng 275 – 478 m2, nằm dọc theo bờ kênh và các lô góc tại các trục đường Hướng Dương 1, Hướng Dương 2, Hướng Dương 3, Hướng Dương 4, Hướng Dương 5 thuộc tiểu khu Hướng Dương Vinhomes The Harmony. Được kết hợp hài hòa giữa phong cách Á Đông và Pháp cổ điển, thể hiện qua mái ngói dốc truyền thống, vòm & ban công cong nhẹ cùng các họa tiết trang trí Á Đông mềm mại, biệt thự đơn lập Hướng Dương Vinhomes Riverside The Harmony sẽ mang đến những trải nghiệm vô cùng độc đáo cho những khách hàng ưa thích cuộc sống truyền thống tại Việt Nam. Dưới đây là hình ảnh phối cảnh & thiết kế chi tiết các mẫu biệt thự đơn lập Đông Dương, bạn hãy tải ảnh về để xem rõ nét hơn:
Biệt thự đơn lập Tulip (Hay còn gọi là biệt thự đơn lập Italia) có tất cả 52 căn được xây dựng trên các lô đất rộng 315 – 494 m2, nằm dọc mặt hồ điều hòa và các lô góc tại các trục đường chính thuộc tiểu khu Tulip Vinhomes Riverside The Harmony, thừa hưởng trọn vẹn tầm nhìn xanh rộng lớn mà khí hậu mát mẻ, trong lành từ mặt nước. Lấy cảm hứng từ những ngôi nhà thơ mộng ven sông tại thành phố Venice Italia, biệt thự đơn lập Tulip Vinhomes The Harmony được xây dựng gần giống với kiến trúc giai đoạn 1 với những hàng cột thanh mảnh, cửa sổ vòm cuốn, ban công kết hợp cùng lan can sắt uốn cong đầy chất nghệ thuật. Dưới đây là hình ảnh phối cảnh & thiết kế chi tiết các mẫu biệt thự đơn lập Italia, bạn hãy tải ảnh về để xem rõ nét hơn:
Biệt thự đơn lập Nguyệt Quế
Biệt thự đơn lập Phong Lan
Biệt thự đơn lập Hướng Dương
Biệt thự đơn lập Tulip
Lựa chọn biệt thự đơn lập Vinhomes Riverside The Harmony làm nơi an cư, bạn sẽ được sống trong một cộng đồng của những người thành đạt, cùng trao đổi những sở thích & kiến thức với những người cùng đẳng cấp như mình. The Harmony – Đó không chỉ là những giai điệu riêng của thiên nhiên sinh đẹp, đó còn là bản hợp xướng từ âm hưởng của cộng đồng những chủ nhân thượng lưu tại thủ đô Hà Nội.
Xem thêm thông tin các dự án khác.
- Sun Grand City Tây Hồ
- Sun Grand City Xuân Thủy
- Sun Grand City Phạm Hùng
- Sun Grand City Láng Hạ
- Vinhomes Giảng Võ
- Vinhomes Nguyễn Trãi
- Vinhomes Mễ Trì 2
- Vinhomes Cổ Loa
- Vinpearl Làng Vân
- Brg Coastal City Đồ Sơn
- The Sunrise Bay Đà Nẵng
- Vimefulland Nguyễn Xiển
- Vimefulland Tây Hồ – Vimefulland Ciputra
Hiện tại Vingroup đang chào bán biệt thự đơn lập Vinhomes The Harmony ra thị trường với giá bán từ 22 – 45 tỷ/lô. Để biết giá bán chi tiết từng lô & chính sách bán hàng mới nhất đang được Vingroup áp dụng, bạn hãy vui lòng liên hệ trực tiếp với chúng tôi theo Hotline trên website hoặc để lại thông tin cá nhân theo Form đăng ký tư vấn bên dưới.

Thông tin liên quan