Chủ đầu tư Tổng công ty CP Xuất nhập khẩu và Xây dựng Việt Nam (Vinaconex) chính thức ra mắt dự án Vinaconex Móng Cái nằm tại trung tâm thành phố Móng Cái với giá bán ưu đãi cùng nhiều chính sách bán hàng hấp dẫn. Hotline: 0916 323 066.
Vinaconex Móng Cái là dự án đất nền biệt thự liền kề được đầu tư và xây dựng bởi Liên doanh Tổng công ty CP Xuất nhập khẩu và Xây dựng Việt Nam (Vinaconex) – Công ty CP Thành Đạt nằm tại Km4 phường Hải Yên, Móng Cái. Dự án Vinaconex Móng Cái triển khai trên diện tích đất 438.804 m2 với quy mô 375 căn liên kề, 372 căn shophouse, 35 căn biệt thự. Vinaconex Móng Cái có tiềm năng phát triển vượt bậc, đảm bảo tính hiện đại, đồng bộ, hứa hẹn là khu đô thị kiểu mẫu,nơi an cư lý tưởng cho cư dân.

Phối cảnh dự án Vinaconex Móng Cái
TỔNG QUAN DỰ ÁN VINACONEX MÓNG CÁI
- Tên dự án: Khu dân cư đô thị tại km3, km4 phường Hải Yên, thành phố Móng Cái
- Vị trí dự án: phường Hải Yên, thành phố Móng Cái, tỉnh Quảng Ninh
- Chủ đầu tư: Tổng công ty CP Xuất nhập khẩu và Xây dựng Việt Nam (Vinaconex)
- Tổng diện tích đất dự án: 438.804 m2
- Quy mô dự án: 375 căn liên kề, 372 căn shophouse, 35 căn biệt thự
- Đất ở: 105.727,5 m2
- Đất TMDV: 21.936,3 m2 với mật độ xây dựng 50%, chiều cao tầng từ 11-17 tầng
- Đất giao thông, hạ tầng kỹ thuật, đất khác: 311.141,2 m2
- Tổng mức đầu tư: Khoảng 1.154 tỷ đồng
- Thời gian bàn giao: Năm 2023
- Hình thức sở hữu: Sổ đỏ lâu dài.
VỊ TRÍ DỰ ÁN VINACONEX HẢI YÊN MÓNG CÁI
Dự án Vinaconex Móng Cái tọa lạc tại phường Hải Yên tiếp giáp với đường chính QL18. Dự án có vị trí đẹp tại TP Móng Cái được quy hoạch bài bản, xung quanh có một số dự án như Kalong Riverside, Hải Yên Villas, Promexco..tạo nên một quần thể khu đô thị văn minh, hiện đại.

Vị trí dự án Vinaconex Móng Cái Quảng Ninh
- Phía Đông giáp cảng ICD Móng Cái.
- Phía Tây giáp quốc lộ 18
- Phía Bắc giáp Hồ Đoan Tính
- Phía Nam giáp Công Ty Thaco Trường Hải.
Liên kết vùng dự án Vinaconex Móng Cái
- 5 phút di chuyển vào trung tâm thành phố Móng Cái
- 8 phút di chuyển tới chợ trung tâm Móng Cái
- 10 phút di chuyển tới cửa khẩu quốc tế Móng Cái
- 30 phút di chuyển tới bãi biển Trà Cổ, Mũi Sa Vĩ…
Sau khi tuyến cao tốc Vân Đồn – Móng Cái thông xe chính thức vào cuối năm 2021 thì các cư dân tại khu kinh tế cửa khẩu Móng Cái dễ dàng di chuyển về đặc khu Vân Đồn, TP Hạ Long, TP Hà Nội và ngược lại sẽ giúp cho thị trường bất động sản tại Móng Cái phát triển mạnh.
TIỆN ÍCH DỰ ÁN VINACONEX HẢI YÊN MÓNG CÁI
Khu đô thị Vinaconex Móng Cái sẽ đem lại cho quý khách hàng một cuộc sống thịnh vượng ven sông phồn hoa nơi thành phố với hệ thống tiện ích thông minh, vượt trội như liền kề, biệt thự, shophouse, khu cao tầng, văn phòng, trung tâm thương mại, bãi đỗ xe, trường học, nhà văn hóa, khu sinh hoạt cộng đồng và công viên cây xanh…
Tiện ích dự án Vinaconex Móng Cái
- Công viên cây xanh
- Khu sinh hoạt cộng đồng
- Bãi đỗ xe
- Trung tâm thương mại siêu thị
- Khách sạn, văn phòng
- Trường THCS, trường mẫu giáo, nhà văn hóa.

Đặc biệt, đường nội khu tại dự án Vinaconex Móng Cái được trải đường nhựa, thoáng rộng, vỉa hè lát gạch được bố trí cảnh quan cây xanh, mạng lưới đèn đường, hệ thống cấp thoát nước…đều đã hoàn thiện, khang trang, pháp lý đẩy đủ, sổ đỏ lâu dài. Vinaconex Móng Cái xứng đáng là khu đô thị có không gian sống văn minh, hiện đại, đáp ứng mọi nhu cầu thiết thực nhất của cuộc sống.
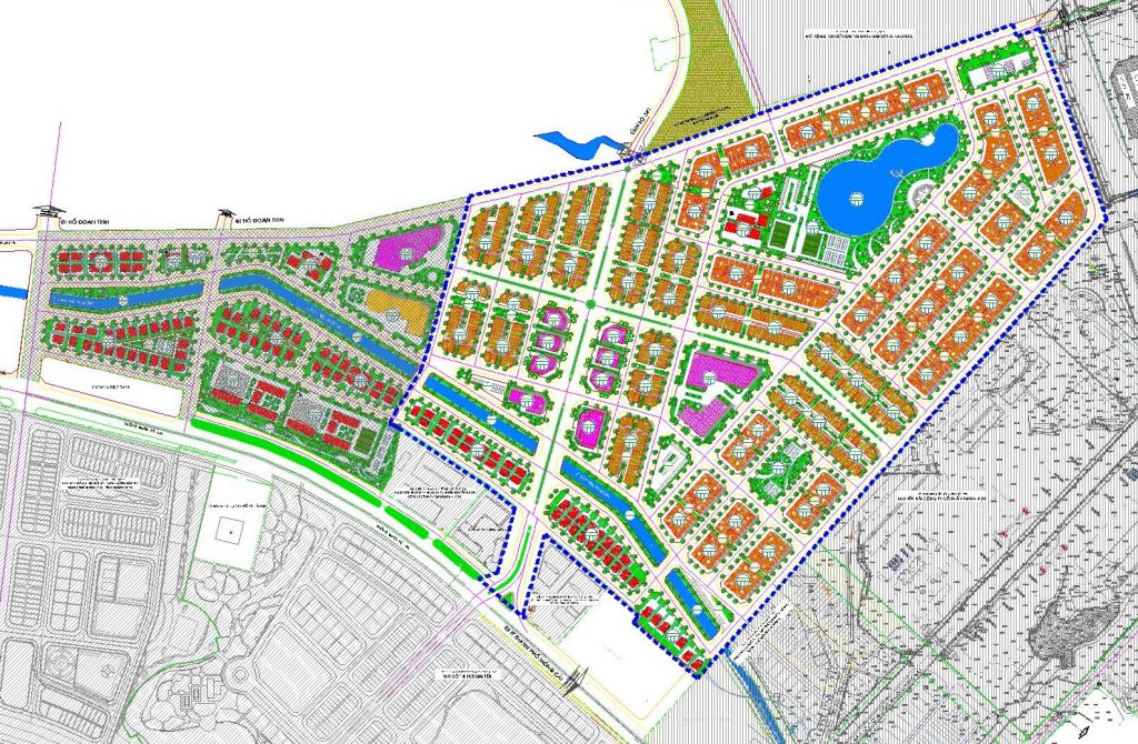
MẶT BẰNG DỰ ÁN VINACONEX MÓNG CÁI
Khu đô thị Vinaconex Hải Yên Móng Cái được xây dựng trên tổng diện tích 43ha với đa dạng loại hình sản phẩm đất nền liền kề, shophouse, biệt thự đơn lập, biệt thự song lập, các khu dịch vụ thương mại..đan xen với những tiện ích đẳng cấp tạo nên một khu đô thị đạt tiêu chuẩn tại nơi địa đầu của tổ quốc.

Mặt bằng dự án Vinaconex Hải Yên Móng Cái
Dự án đất nền Vinaconex Móng Cái bao gồm các sẩn phẩm:
- 375 căn liền kề
- 372 căn shophouse
- 35 căn biệt thự đơn lập.

Phối cảnh shophouse dự án Vinaconex Hải Yên Móng Cái

Phối cảnh biệt thự dự án Vinaconex Hải Yên Móng Cái
GIÁ BÁN VÀ TIẾN ĐỘ THANH TOÁN
Giá bán liền kề Vinaconex Móng Cái: Liên hệ 0916 323 066
Giá bán biệt thự Vinaconex Móng Cái: Liên hệ 0916 323 066
Giá bán shophouse Vinaconex Móng Cái: Liên hệ 0916 323 066
Tiến độ thanh toán dự án Vinaconex Móng Cái: Liên hệ 0916 323 066
Thông tin chi tiết dự án Vinaconex Móng Cái quý khách liên hệ
Hotline: 0916 323 066
